The store could be part of a wider development including a drive-thru coffee shop or restaurant

Plans have been submitted to Hull City Council for a new Lidl to be built off Marfleet Lane. The store could be part of a wider development including a drive-thru coffee shop or restaurant.

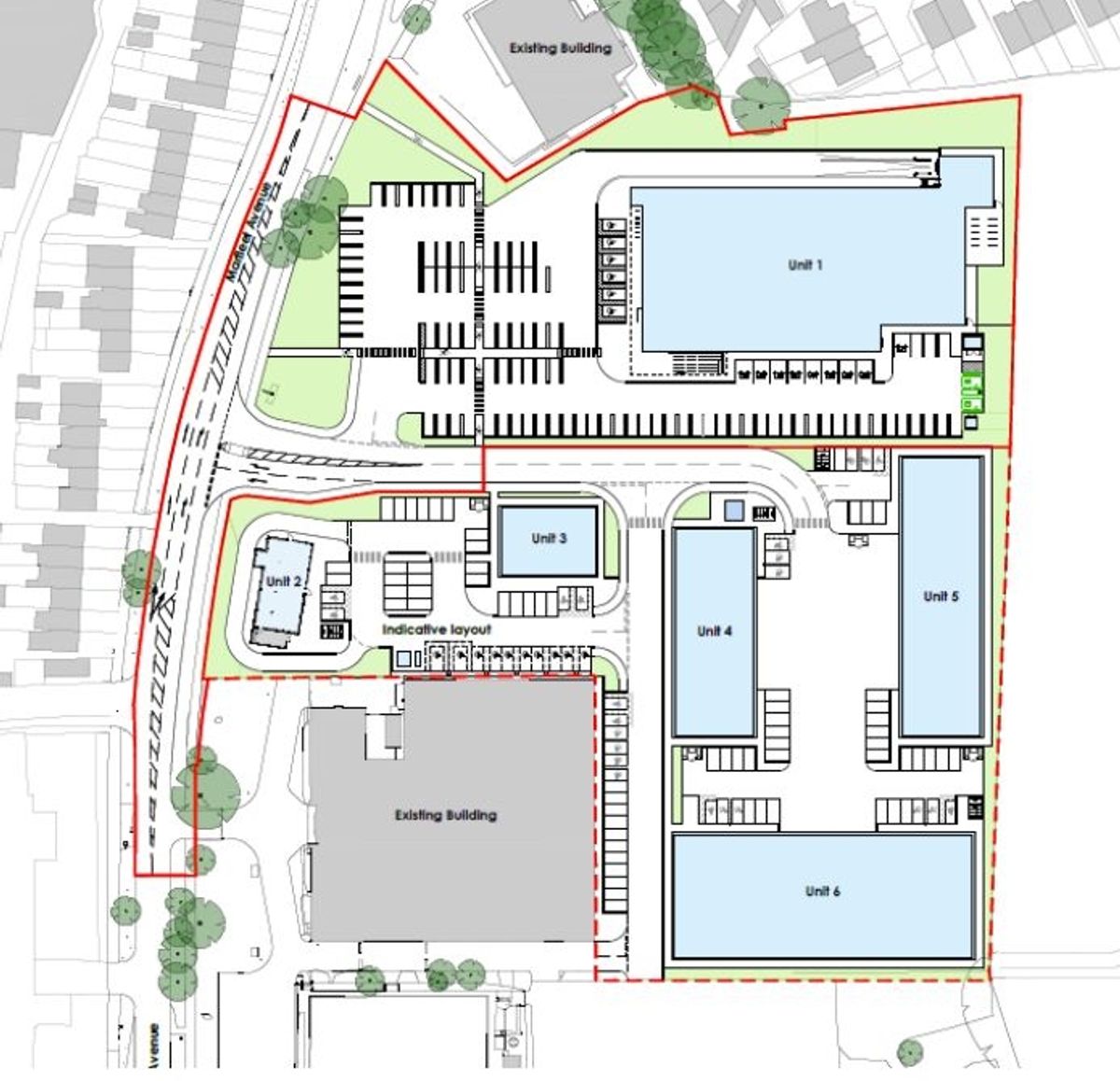
The council has received a hybrid planning application seeking to develop a vacant area of land in east Hull. The land includes part of the former Fenner Dunlop site and a former cricket field.

The hybrid application is split into two distinct parts. The site is essentially split between North and South in the plans.

Part 1 – Lidl

The northern part of the site is subject to a full planning application which seeks permission for the erection of a new Lidl store. The site would be accessed by a new access road off Marfleet Lane.

Plans say the store would be supported by a 131 space car park. The store would also create around 40 full-time-equivalent jobs.

Did you know you can make Hull Live a preferred source of Hull news in Google, which will mean you get more of our breaking news, exclusives, and must-read stories straight away? Here’s more information about what this means and how to do it – you can also do it straight away by clicking here.

Part 2 – Potential drive-thru & more

The southern part of the site is subject to an outline planning application. This means at this stage, developers are simply hoping for the council to agree to Part 2 in principle rather than agreeing upon the project’s finer details.

The plans suggest building a range of units which could include a new drive-thru. The southern part of the site would share the new access road with the Lidl store.

This part of the application also includes the demolition of the northern wing of the former Fenner Dunlop building. A full planning application for Part 2 of the project could follow if outline plans are approved by the council.

To find all the planning applications, traffic diversions, road layout changes, alcohol licence applications and more, visit the Public Notices Portal .

Article continues below

Leave a Reply

Your email address will not be published. Required fields are marked *